TIN HẾT HẠN

(Hết hạn) Lô đất 814m² đã có gpxd 16 tầng quận 3 – hiếm quỹ đất lớn trung tâm

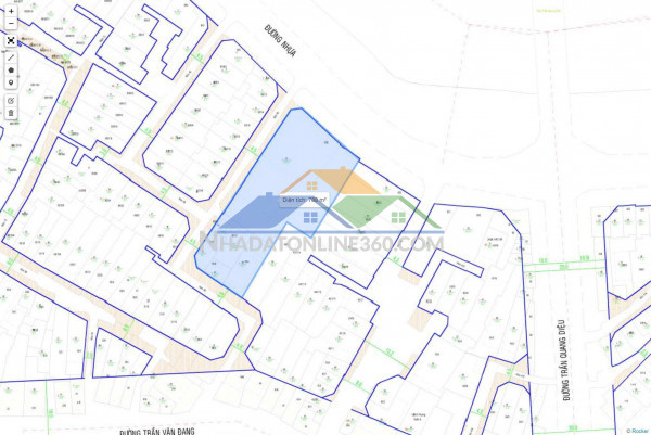
Đường Hoàng Sa, Phường 09, Quận 3, TP HCM

350 tỷ
814 m2 (21x46)
26-03-2026
Thông tin mô tả:
Chuyển nhượng lô đất 835 Hoàng Sa Quận 3 – GPXD 16 tầng
???? Vị trí: 835 Hoàng Sa, Phường 9, Quận 3
???? Diện tích đất: 21 m × 46 m???? Diện tích công nhận: 814 m²
????️ Quy hoạch – xây dựng:• Giấy phép xây dựng: 1 hầm + 16 tầng• Tổng diện tích sàn: ~11.000 m²• Mật độ xây dựng: 55%• Chiều cao tối đa: 67 m
???? Pháp lý: đầy đủ
Khai thác & định hướng
Phù hợp:– Phát triển tòa nhà văn phòng– Khách sạn, căn hộ dịch vụ– Building khai thác dòng tiền quy mô lớn
Phân tích giá trị
Quỹ đất trên 800 m² tại Quận 3 là rất hiếm, đặc biệt khi đã có sẵn GPXD cao tầng.
Hoàng Sa là tuyến ven kênh, thoáng, kết nối nhanh các quận trung tâm.Việc đã có pháp lý xây dựng giúp rút ngắn thời gian triển khai và tăng giá trị đầu tư.
Giá chào
Tìm kiếm theo từ khóa
Video & Hình ảnh:
Thông tin chi tiết
Danh mục Bán đất TP HCM
Giấy tờ pháp lý Sổ Hồng
Chiều ngang 21 m
Chiều rộng (chiều sâu) 46 m
Diện tích 814 m2
Thông tin khác
Loại tin đăng Miễn phí
Ngày cập nhật
Ngày hết hạn
Lưu ý

Bạn đang xem tin đăng "(Hết hạn) Lô đất 814m² đã có gpxd 16 tầng quận 3 – hiếm quỹ đất lớn trung tâm", có mã số #310162, được cập nhật . Thông tin rao vặt là do người đăng tin đăng tải toàn bộ thông tin. Chúng tôi hoàn toàn không chịu trách nhiệm về bất cứ thông tin nào liên quan đến các thông tin này. Hãy thông báo cho chúng tôi nếu tin này không hợp lệ.

Phản ánh / Báo xấu

Tính lãi suất vay

Giá nhà đất
VNĐ
Số tiền vay
Thời gian vay
Lãi suất
Phương thức tính
Trả trước -
Tiền vay -
Lãi cần trả -
Tiền gốc -
Tiền lãi -

Bảng tính chỉ có giá trị tham khảo. Vui lòng liên hệ tư vấn trực tiếp để nhận được thông tin chính xác nhất.

Bất động sản khác tại Quận 3

Với mức đầu tư 9 tỷ 800 triệu sở hữu ngay  nhà phố trung tâm q3 5 ảnh

Với mức đầu tư 9 tỷ 800 triệu sở hữu ngay nhà phố trung tâm q3

9 tỷ 800 triệu 38 m 2 (55x8) 5pn 4wc 10 giờ trước
Đến một độ tuổi nào đó, chúng ta sẽ nhận ra:+ Điều quý giá nhất cha mẹ để lại cho con.Không phải là xe đẹp, không phải hàng hiệu, cũng không phải một khoản tiền rồi tiêu dần theo thời gian. Mà là một "Nền tảng tài chính" tự vận hành để nuôi sống con mình nhiều năm sau này.Một căn nhà tạo ra dòng tiền ổn định mỗi tháng chính là cách để:- Con gái mình bớt đi áp lực cơm áo gạo tiền khi lập gia đình.- Con trai mình có điểm tựa vững chắc để khởi nghiệp, không phải bắt đầu từ con số 0.- Cháu chắt mình có thêm điều kiện học tập và sinh hoạt tốt nhất.- Ít nhất mỗi tháng đều có một khoản thu nhập thực tế đỡ đần cuộc sống.* Nhiều người gọi đó là "tích sản".- Nhưng có rất nhiều tài sản chỉ "đẹp để ngắm".- Tài sản thực sự là tài sản phải tự sinh ra tiền.- Một căn nhà dòng tiền tốt không chỉ là nơi giữ tiền chống lạm phát, mà còn là một "cỗ máy" tạo thu nhập:+ Tự tạo lợi nhuận hàng tháng (Tỷ suất cao gấp đôi căn hộ).+ Giá trị đất trung tâm tăng trưởng bền vững theo năm tháng.+ Chống trượt giá Điều mà tiền mặt không làm được.Cơ hội sở hữu tài sản truyền đời tại trung tâm quận 3.Với mức đầu tư 9 tỷ 800 triệu, anh chị không chỉ mua một căn nhà, mà là mua một Hệ thống thu nhập sẵn có:1. Vị trí: Trung tâm Quận 3: Quỹ đất vàng cực hiếm.2. Khai thác: 09 phòng cho thuê cao cấp luôn kín khách.3. Dòng tiền thực tế: 45 55 triệu/tháng (Hơn 500 triệu/năm).4. Tình trạng: Nhà mới sửa chữa hoàn chỉnh, hệ thống vận hành chuyên nghiệp.5. Pháp lý: Sổ hồng chính chủ, sẵn sàng giao dịch ngay.6. Mua về là có thể tiếp quản khai thác và nhận thu nhập ngay tháng đầu tiên.Tại sao là lúc này?7. Ngang 5,5 m x dài 8m, tổng 38m2 đất, dtsd 190m2- Khi gửi ngân hàng lãi suất không còn hấp dẫn và giá trị tiền gửi đang mất dần giá trị do lạm phát.- Khi đất tỉnh còn đang nằm chờ thời.- Khi chung cư cao cấp đang dần bão hòa về giá thuê.Thì một tài sản "Thực" tạo ra tiền "Thực" ngay tại lõi tru
Chơi quận 1, ăn quận 5, ở quận 3, bán nhà đẹp tại phường 11, quận 3, tp hồ chí minh 5 ảnh

Chơi quận 1, ăn quận 5, ở quận 3, bán nhà đẹp tại phường 11, quận 3, tp hồ chí minh

9 tỷ 990 triệu 38 m 2 9pn 6wc 15 giờ trước
CHƠI QUẬN 1, ĂN QUẬN 5, Ở QUẬN 3, BÁN NHÀ ĐẸP Tại Phường 11, Quận 3, Tp Hồ Chí MinhBÁN NHÀ DƯỚI 10 TỶ, SẴN NGUỒN THU 50 TRIỆU/ THÁNG ***Địa chỉ: hẻm 869, Đường Hoàng Sa, Phường 11, Quận 3, Tp Hồ Chí Minh***Diện tích: 38m2. *** Giá bán: 9,99  tỷ- Kết cấu: Nhà 5 tầng, 9 phòng ngủ, 6 wc- Nhà xây dựng kiên cố, thiết kế thông minh, hiện đại, mặt tiền 5,5m giúp không gian thoáng mát..- Nằm ở vị trí thuận tiện di chuyển đi các cung đường để vào lõi trung tâm- Gần Ga Metro số 2( tuyến CMT8), gần chợ, trường học, cơ quan hành chính....- Hợp đồng thuê sẵn có, mang về 600 triệu/ năm- Căn nhà vừa có vị trí trung tâm, kết cấu hạ tầng tốt lại sẵn dòng tiền thu 50 triệu/ tháng, rất đáng để đầu tư- Thích hợp: Đầu tư tích sản, giữ tiền chống lạm phát hoặc chuẩn bị di sản dòng tiền cho con cháu- Pháp lý: Đầy đủ, thủ tục sang tên nhanh chóng- Tiềm năng lớn, đảm bảo sinh lời cao   Mọi nhu cầu liên hệ : chính chủ 0968935311 https://www.youtube.com/shorts/-DrJJcx0mZM
Siêu phẩm 2 căn liền kề nguyễn thị minh khai – p. bàn cờ, quận 3 – cơ hội vàng đầu tư sinh lời 5 ảnh

Siêu phẩm 2 căn liền kề nguyễn thị minh khai – p. bàn cờ, quận 3 – cơ hội vàng đầu tư sinh lời

18 tỷ 57 m 2 5pn 6wc 11-05-2026
SIÊU PHẨM 2 CĂN LIỀN KỀ NGUYỄN THị MINH KHAI – P. BÀN CỜ, QUẬN 3 – CƠ HỘI VÀNG ĐẦU TƯ Khách Sạn CH Dịch Vụ - Vị trí cực hiếm ngay trung tâm Q3 giáp Q1 * CĂN NHỎ – 382/22A Nguyễn Thị Minh Khai, P. Bàn Cờ Giá tốt: 18 tỷ   Lh*909851984- Diện tích: 3.8 x 15m, dt sàn: 176.74m2- Kết cấu: 3 lầu, 5 phòng ngủ khép kín+1 WC tầng trệt- Hẻm rộng 6m, ô tô thông 2 trục lớn Nguyễn Thị Minh Khai & Võ Văn Tần- Cách BV Từ Dũ hơn 500m, gần BV Tai Mũi Họng, BV Bình Dân, chỉ vài phút đến Công viên Tao Đàn, CV 23/9, gần Co.opmart, Điện Máy Xanh, Bách Hóa Xanh, trường học, chợ chỉ vài trăm m, cách chợ Bến Thành hơn 1km- Phù hợp:  Ở lâu dài, kinh doanh đa ngành nghề, cho thuê căn hộ dịch vụ, khai thác dòng tiền cực tốt*CĂN LỚN – 382/22 Nguyễn Thị Minh Khai, P. Bàn Cờ  Giá bán: 26 tỷ (thương lượng khách thiện chí) Diện tích: 86m2– phát lộc   Lh*909851984- Kết cấu: 1 trệt 1 lầu- Hẻm xe tải 2 chiều khu vực cao ráo, hơn 40 năm chưa từng ngập- Chỉ vài bước sang Q1, gần phố Tây Phạm Ngũ Lão – Bùi Viện, chợ Vườn Chuối, BV Từ Dũ, Phụ sản Quốc tế, BV Bình Dân, trường học, trung tâm thương mại- Hiện đang cho thuê nhà hàng thu nhập ổn định* Thích hợp làm: Văn phòng công ty, nhà hàng, Khách sạn mini, căn hộ dịch vụ cao cấp* MUA GỘP 2 CĂN– GIÁ CHỈ 44 TỶ - Phù hợp xây khách sạn – apartment service – khai thác dòng tiền lâu dàiLh chính chủ: 0909851984 – Anh Hải Sổ sạch – công chứng nhanh chóng
Phòng trọ cho thuê – sạch sẽ, riêng tư – quận 3 4 ảnh

Phòng trọ cho thuê – sạch sẽ, riêng tư – quận 3

3.5 triệu 15 m 2 (1x1) 1pn 1wc 10-05-2026
PHÒNG TRỌ CHO THUÊ – SẠCH SẼ, RIÊNG TƯ – QUẬN 3- Địa chỉ: 518/9 Cách Mạng Tháng 8, Quận 3, TP HCM - Phòng đầy đủ nội thất, dọn vào ở ngay- Máy nước nóng- WC riêng (tuỳ phòng)- Không gian thoáng mát, sạch sẽ- Khu vực yên tĩnh, an ninh, thuận tiện đi lại – phù hợp sinh viên và người đi làm muốn ở lâu dài.- Các loại phòng hiện có:* Phòng trệt – 15m² : Full nội thất, WC riêng=>  Giá: 3,5 triệu/tháng* Phòng tầng 1 – 15m² : Full nội thất=> Giá: 3,5 triệu/tháng* Phòng tầng 1 – 25m² : Full nội thất, Không gian rộng rãi=> Giá: 4,5 triệu/tháng* Phòng nhỏ lầu 2 : WC chung=> Giá: 3,5 triệu/tháng- Điện: 4.000đ/kWh- Nước: 100.000đ/người- Phí dịch vụ: 100.000đ/phòngLIÊN HỆ : 0707040492
Bán nhà 4 tầng chợ hoa nổi tiêng đ.hồ thị kỷ, quận 3- hxh 6m thông các ngả- vị trí kinh doanh sầm uất khai thác dòng tiền đỉnh- 0938676685 giang giang 10 ảnh

Bán nhà 4 tầng chợ hoa nổi tiêng đ.hồ thị kỷ, quận 3- hxh 6m thông các ngả- vị trí kinh doanh sầm uất khai thác dòng tiền đỉnh- 0938676685 giang giang

10 tỷ 600 triệu 44 m 2 (4x14) 10-05-2026
* PHỐ CHỢ HOA NỔI TIẾNG - BÁN NHÀ 3 TẦNG MẶT TIỀN HẺM XE HƠI 6M Đ.HỒ THỊ KỶ, P.1, QUẬN 3 (P.VƯỜN LÀI) - 0938.676.685 GIANG GIANG + Diện tích: 44m2 - Ngang 3,5m*14m.+ Kết cấu: 3 tầng.+ Vị trí đa sắc màu: vừa là phố nổi tiếng chợ hoa Hồ Thị Kỷ và cũng là khu phố ẩm thực Hùng Vương - Kinh doanh buôn bán nhộn nhịp.+ Pháp lý chuẩn - Sổ hồng vuông đẹp+ Chủ chào: 10,6T+ Liên hệ GIANG GIANG: 0938.676.685 + Nhận ký gửi nhà phố